Вифлеем изучен существенно хуже, чем Назарет и Капернаум. Основной памятник христианских древностей здесь — базилика, впервые освященная 31 мая 339 г., через несколько лет после посещения Елены. Базилика была поставлена прямо над комплексом пещер; сейчас в восточной части одной из этих пещер находится место, отмеченное звездой. Там, по преданию, появился на свет Христос.
Достоверных сведений о том, как именно в IV в. было определено место для постройки и почему именно эта пещера идентифицирована с «пещерой Рождества», нет. Евангелия излагают подробности рождения Иисуса довольно противоречиво.57 Апокрифы расходятся в описаниях еще больше. В IV в., например, существовало мнение, что Иисус родился вблизи могилы Рахили. Раскопки «Рамат Рахель» показали, что при Адриане, до изгнания иудеев, здесь было сельское кладбище, которое в начале III в. использовала небольшая еврейская община Иерусалима; затем здесь обосновался X римский легион, превратив склепы в цистерны, построив термы и жилые здания (Aharoni, 1962, 24-7, 1964, 38-82). В V в. место Рождества помещалось апокрифами и вне Вифлеема, например, на так называемой Кафизме («кресле» или «троне») — одной из скал в окрестностях Иерусалима, где был в 451-458 гг. построен монастырь. В начале VI в. архидиакон Феодосий описал камень в 3-х милях от города Иерусалима, который Дева Мария благословила, сойдя с осла на пути в Вифлеем, и на котором сидела — но это последние попытки материализовать представления о рождении Иисуса вне Вифлеема.58
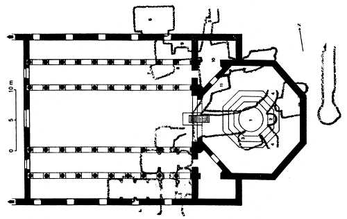
Вифлеем. План пещер и храма эпохи Константина (Taylor, 1993).
Археологически изначальные формы и функции ныне существующих пещер изучены слабо, но ясно, что они претерпели массу изменений. Главная пещера (ок. 12.3x3.5 м) теперь связана с боковыми, в IV— V вв. служившими как усыпальницы. Сейчас спуск в пещеру с севера и юга по ступеням, хотя в IV в. он был с запада. Ориген упоминает конструкцию, которую когда-то язычники показывали христианам как ясли — сейчас на их предполагаемом месте скальный выступ, покрытый мрамором. В северный комплекс пещер попадают через средневековые лестницы и проходы. Освоение «пещеры Рождества» в античности не подтверждается ни нумизматикой, ни археологией.59
Гораздо лучше известна сама церковь Рождества, история которой отразила важные процессы в развитии ранней христианской архитектуры. Археологические исследования обнаружили, что церковь построена в два этапа, при императорах Константине и Юстиниане, и нынешнее здание принадлежит в основном VI в.60 Церковь же IV в. была весьма необычна по решению. Как почти все постройки Константина, храм служил лишь обрамлением святилища. Над пещерой возвели октагональную в плане постройку, перекрытую конической деревянной крышей с отверстием (oculus) посредине. Пол ступенчато повышался к центру, где также был проем, окруженный балюстрадой. Сквозь него паломники могли созерцать пещеру.61 К «октагону» примыкала пятинефная базилика, почти квадратная в плане, с внутренним двором и фонтаном в центре.
Сочетание октагона и базилики имело свои недостатки: алтарное пространство фактически отделено от церковного нефа и заполнено теснящимися к «окну» паломниками. Перестройка Юстиниана позволила их доступ к святыне при одновременном проведении службы в церкви. Октагон сменила трехлепестковая апсида, образовавшая единое пространство с базиликой; паломники же, стремившиеся прежде всего посетить пещеру Рождества, лежавшую под алтарным пространством, могли теперь спускаться в нее по ступеням с одной стороны и подниматься с другой, не мешая происходящей наверху литургии (крипты с отдельными рядами ступеней для спуска и подъема найдены также в базилике Елеоны, в церкви над «Колодцем Иакова» возле Шхема и в других местах).
